BAILLARGUES – Maison à beau potentiel

Ce bien a trouvé son nouveau propriétaire  ! Une belle histoire immobilière signée 💎 Gemme Immobilier.

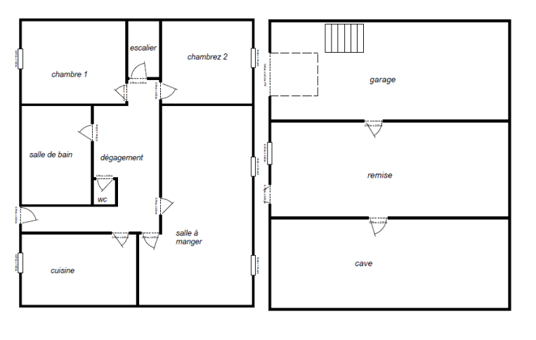
  • 600
  • Lot m²
  • 85
  • 3
  • Pièces
  • 2
  • Chambres
  • 1
  • Salle de bain
  • 1
  • Garage
  • 1978
  • Année construction

Découvrez cette charmante maison non mitoyenne de 85 m², située à Baillargues, dans un quartier résidentiel.

Le terrain de 600 m², piscinable, vous permettra de réaliser vos projets d’aménagement extérieur. Bien que des travaux importants soient à prévoir, cette maison présente de nombreuses possibilités d’extension grâce à son reste de surface constructible.

Offrez à cette maison l’éclat qu’elle mérite et façonnez-la à votre image!

LA LOCALISATION DU LOGEMENT

INFORMATION  ENERGETIQUE DU LOGEMENT

  • Classe énergétique: E
  • Valeur consommation énergie primaire: 325
  • A
  • B
  • C
  • D
  • 325 | Classe énergétique E
    E
  • F
  • G

VOS DERNIERES RECHERCHES

Compare listings

Comparer
Sandrine PORTALES
  • Sandrine PORTALES